Дом, Боровский тракт, 41 Показать на карте
Апрелевка
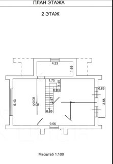
Номер объекта: 621549. Прекрасная возможность стать обладателем уютного и просторного дома всего в нескольких минутах ходьбы от метро Апрелевка! Продаётся просторный дом с тремя комнатами на первом этаже. Общая площадь дома составляет 101 квадратный метр.Данный дом идеально подойдет для тех, кому важны комфорт и удобство. Вы сможете наслаждаться приятной атмосферой своего собственного уединенного пространства, где можно расслабиться и забыть о городской суете.Сейчас в доме имеется стандартный ремонт, что позволит вам немедленно заселиться и начать наслаждаться уютом вашего нового жилища. Экономичный вариант идеальный выбор для молодых людей, которые только начинают свой путь к собственному жилью. Этот дом также является оптимальным вариантом для инвестиций в недвижимость, так как он будет пользоваться постоянным спросом и высокой стоимостью.Дом идеально подходит для больших семей, а также для родителей или пожилых родственников, которые ценят уют и спокойствие. Благодаря наличию нескольких комнат, здесь найдется место для каждого члена семьи, где каждый сможет насладиться своей частной жизнью.Отличным стимулом для покупки данного дома может стать использование материнского капитала. Своевременное вложение средств в недвижимость позволит вам обеспечить свое будущее и будущее ваших детей. Не упустите уникальную возможность стать обладателем просторного и уютного дома всего в нескольких шагах от метро!Звоните по указанному номеру и узнайте более подробную информацию о данном доме. Наши специалисты ответят на все ваши вопросы и помогут вам приобрести идеальное жилье для вашей семьи. Не упустите шанс приобрести свое собственное пространство комфорта и уюта по выгодной цене! Содействие в одобрении ипотеки. Звоните. Показы по предварительной договоренности.
101 м2
1 этаж
Дерево
- Показать контакты
- Добавить в избранное
101 м2
1 этаж
Дерево
18 500 000
182 626 /м2
